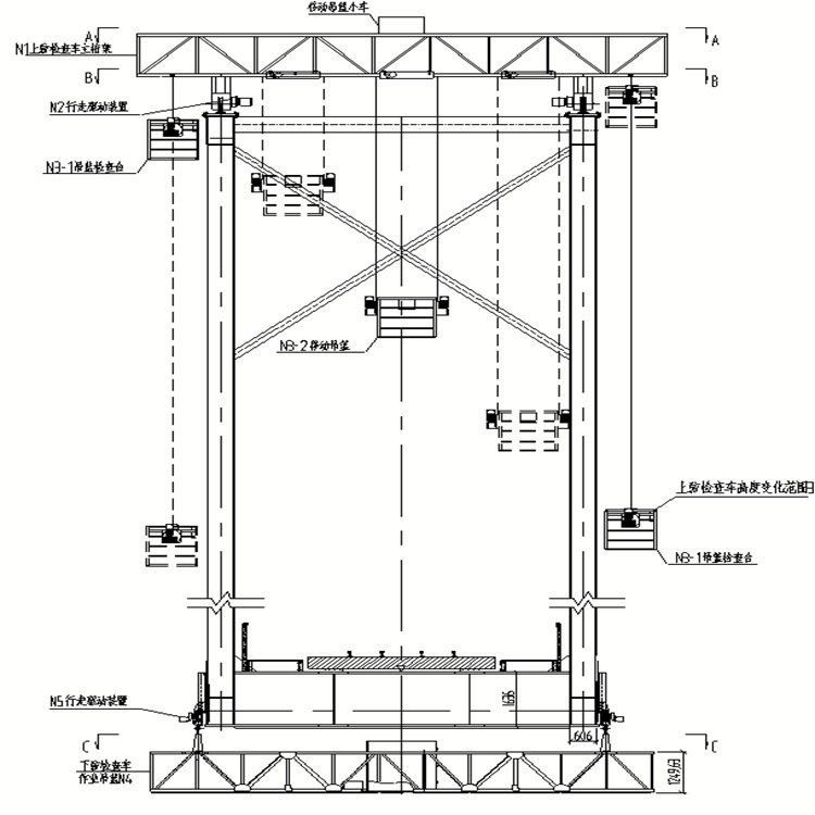
鋼桁架橋梁上弦檢查小車
柳州广州鼎高家电制造有限责任公司專業承接來圖定做、按需定制高鐵橋上弦檢查小車、簡㊙️易橋梁檢測車,鋼桁架橋梁上弦檢查小車,橋梁施🔞工吊籃,同時公司擁有專業的橋梁檢查軌道及檢查車💌安裝施👯🏾♂️工技術人才隊伍,面向全國承包橋梁橋梁檢查車安裝工程,給您免費提供橋梁檢測設計及施工方案!鋼桁架橋梁上弦檢查小車采用上部軌👩🏽🐰👩🏿道行走方案,即行走機構通過🤑鋼輪設置于工字鋼軌道上,車架與行走機構相連,在電機🤶🏾的驅動下運行。

鋼桁架橋梁上弦檢查小車車架總成主要是由矩形管和方形鋼管制成的分段框架式栓焊結構,然後通💯過螺栓連接成一個整體,是檢修梁體時用于載人和放置工具、材料👯🏾♂️的平台💌,整車可在軌道上沿橋梁縱向行走。整個車架可拆卸式結構,由7個車架💯通過拴接成整體。這種結構簡單,組裝方便,便于拆卸和運輸。能方便工作人員對😮💨橋梁底部進行全方位檢查。車👼🏾架上部安裝焊😁接有花紋💘鋼闆或鋼闆網,便于工作人員工作行走。

高鐵橋上弦檢查小車桁架總成兩端由吊籠車架安裝在桁架伸出鋼梁外側的兩個端部上,兩側爲對稱結構👨🏻🏭,根據🧑🏻❤️🧑🏼桁高,一般分爲五組,每一組都是一個框架式的工🧎🏻♀️➡️作籠,吊籠靠橋⛹🏻♂️一側設計有旋轉門,工作時,将旋轉門伸展,使鏈條繃緊,維修人員即可在工作吊籠旋轉門翻闆上安全方便地對整個鋼🧑🏽❤️💋🧑🏻梁維修車體範圍内進行維修。當工作完成後,可将旋轉門折疊,并将挂鈎挂😝在吊籠車架上固定,收于吊籠車架内。

|
高鐵橋梁上玄檢查車技術參數 |
單位 |
上弦檢查車 |
|
高鐵橋梁上玄檢查車行走速度 |
m/min |
5~10 |
|
高鐵橋梁上玄檢查速度 |
m/min |
5~10 |
|
高鐵橋梁上玄檢查車整機較大載重 |
kg |
1000 |
|
電源(自帶電源) |
科勒汽油發電機3相 |
|
|
工作狀态抗風能力 |
m/s |
15m/s |
|
停車狀态抗風能力 |
m/s |
30m/s |
|
軌道型号 |
boao192a |
|
|
檢查車重量 |
噸 |
≤8噸 |
在線留言
掃一掃,關注我們公衆号
柳州广州鼎高家电制造有限责任公司